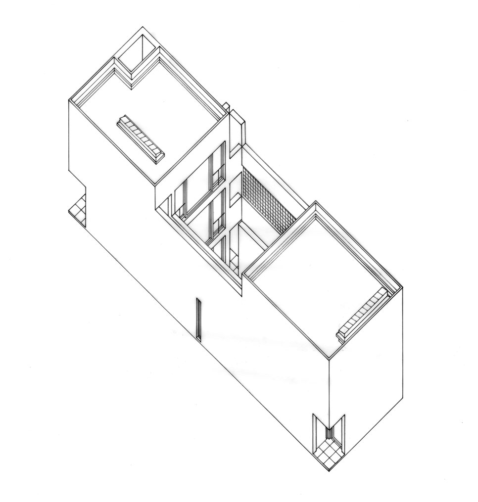
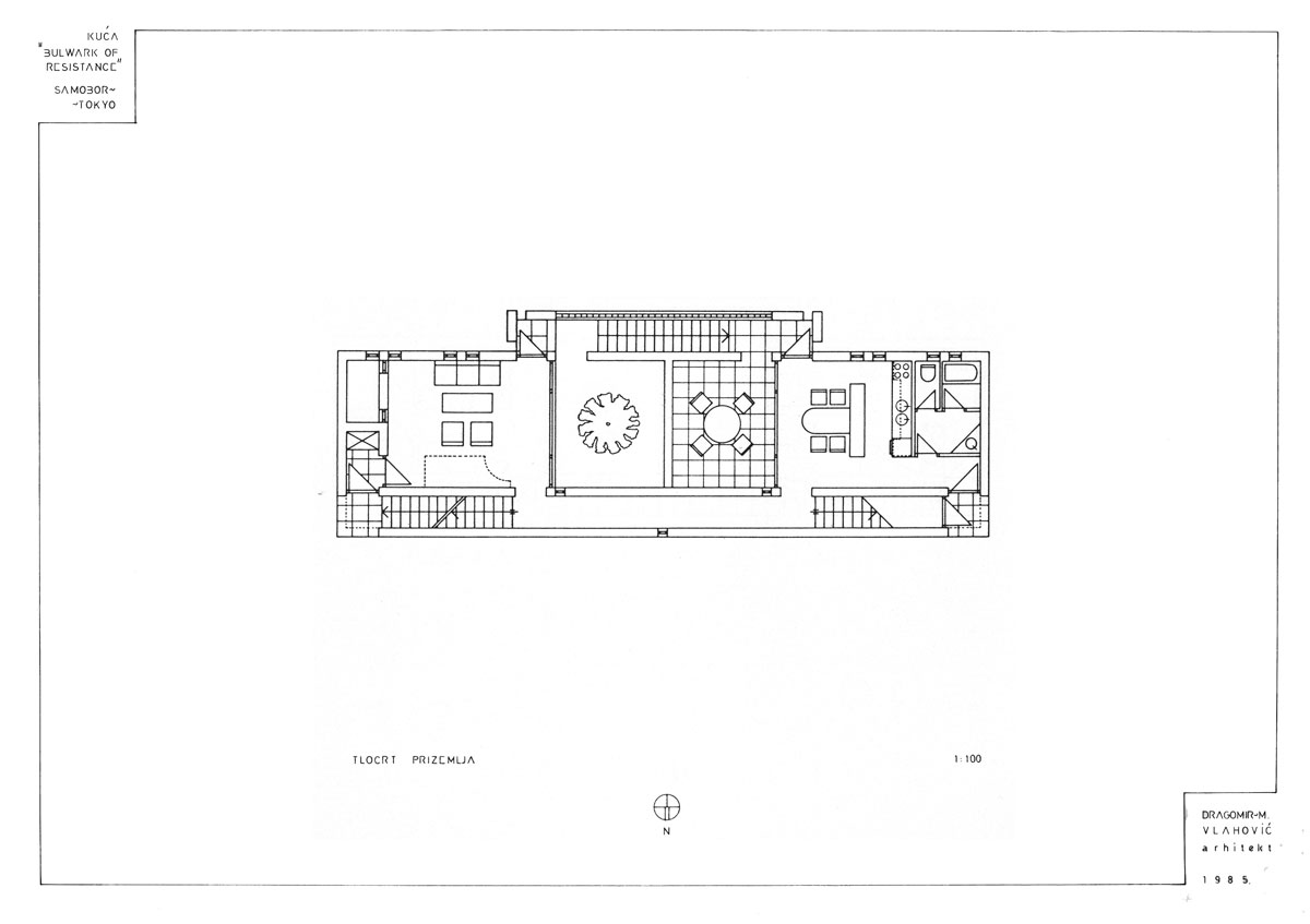
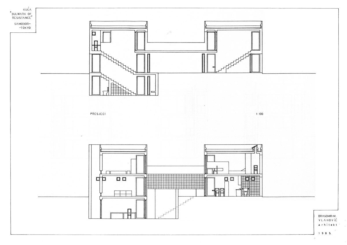
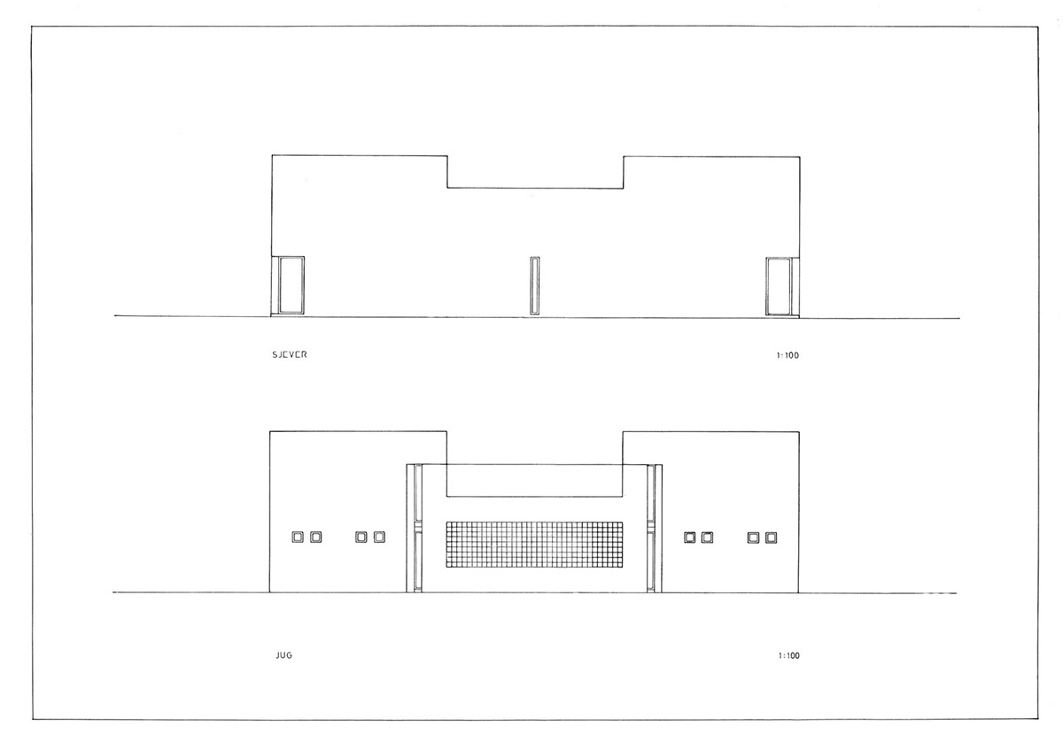
'Bulwark of Resistance' (zid koji pruža otpor)- kuća Vlahović, Samobor

projekt
1985.