kuće
biografija
popis radova
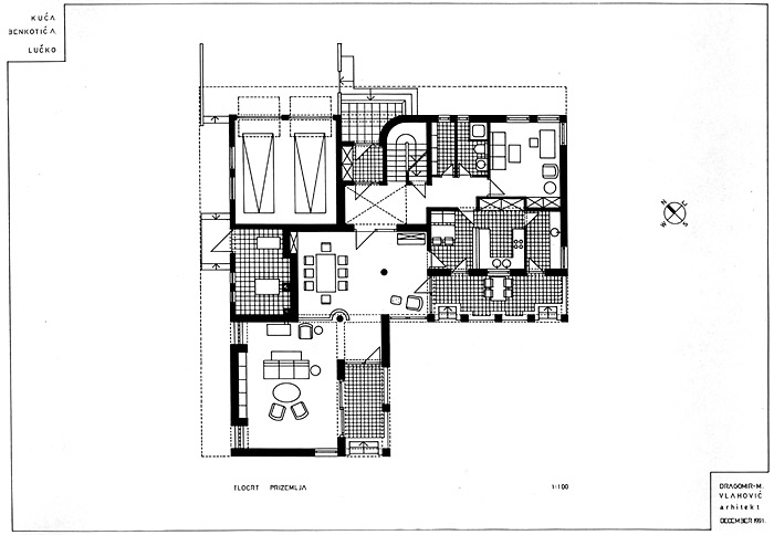
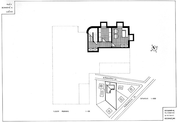
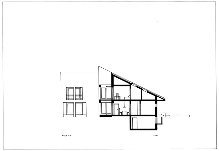
'Siva kuća' - Kuća Benkotić Kobas, Zagreb, Lučko
projekt
1991.
izvedba:
1992.