kuće
biografija
popis radova
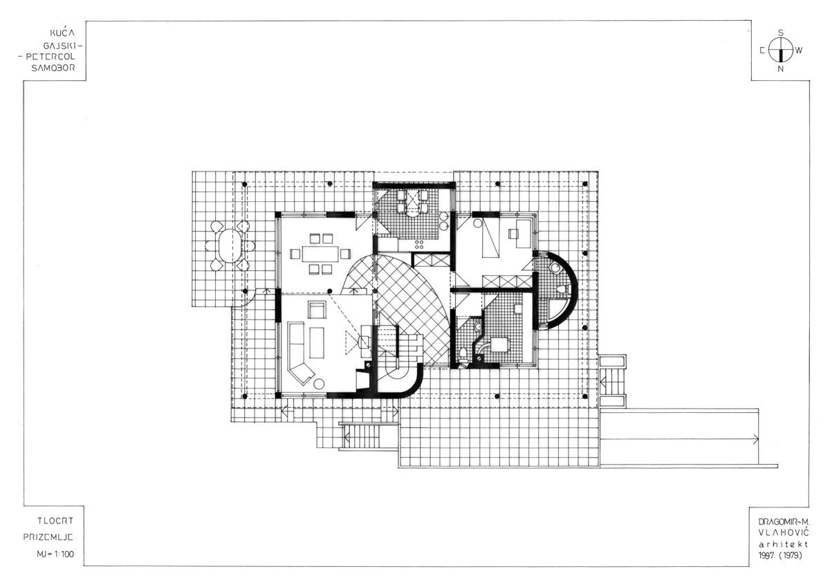
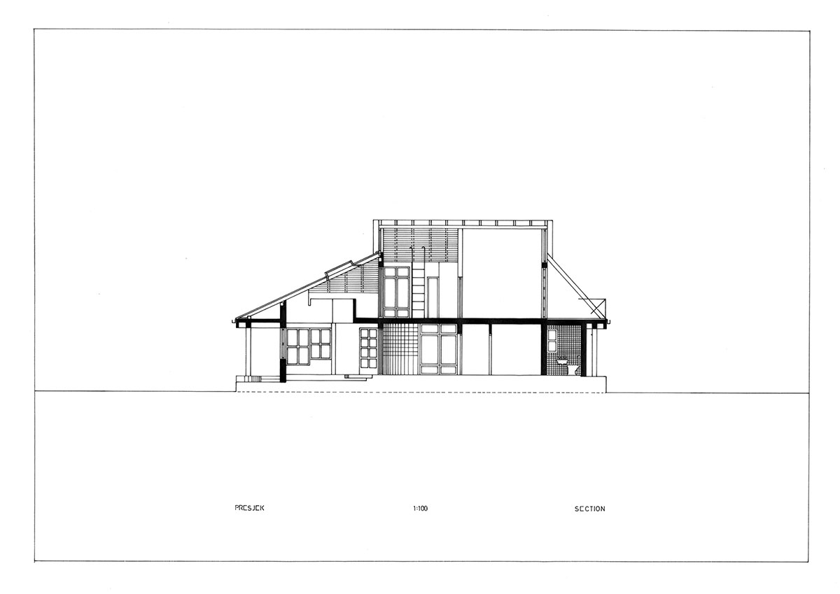
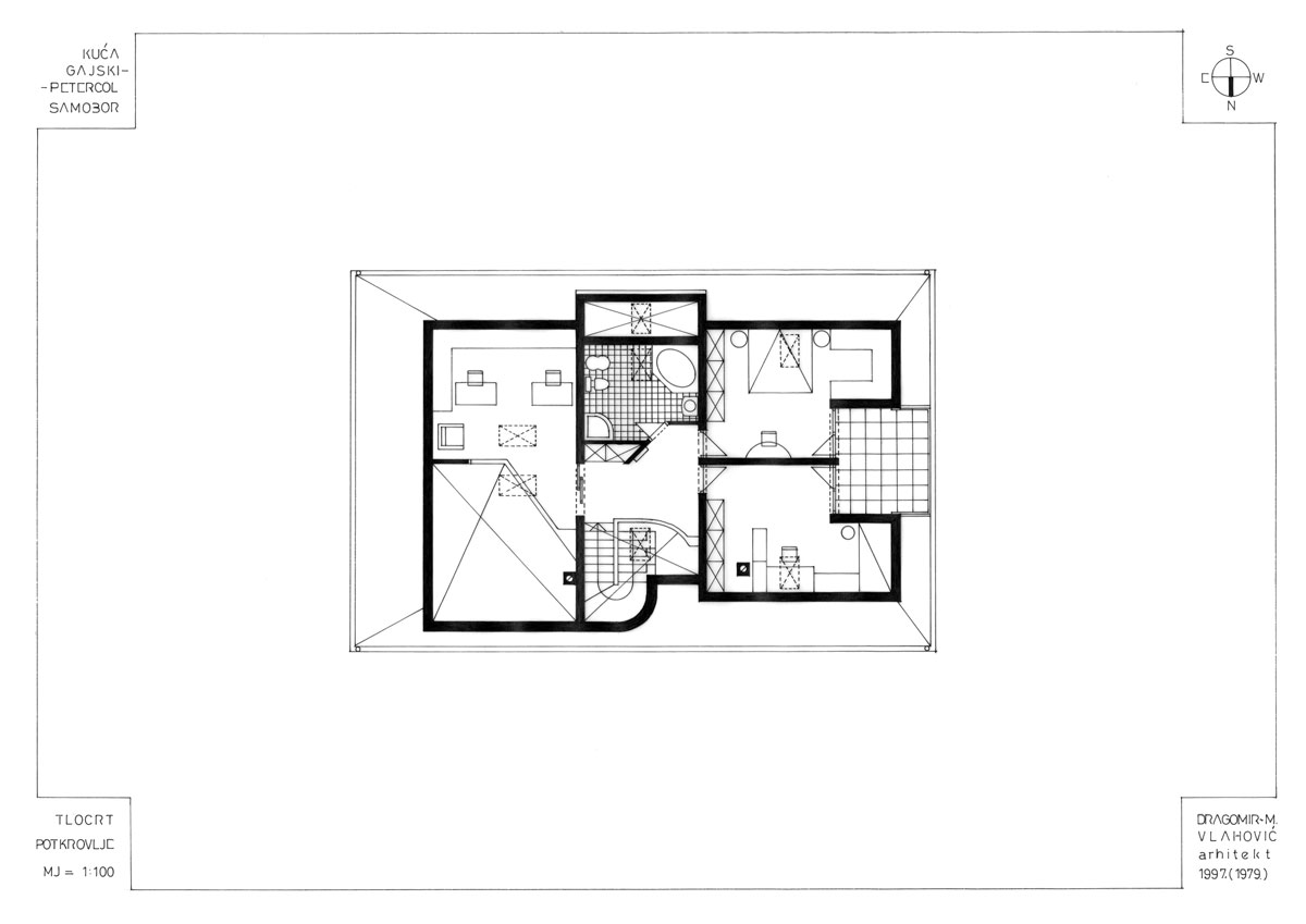
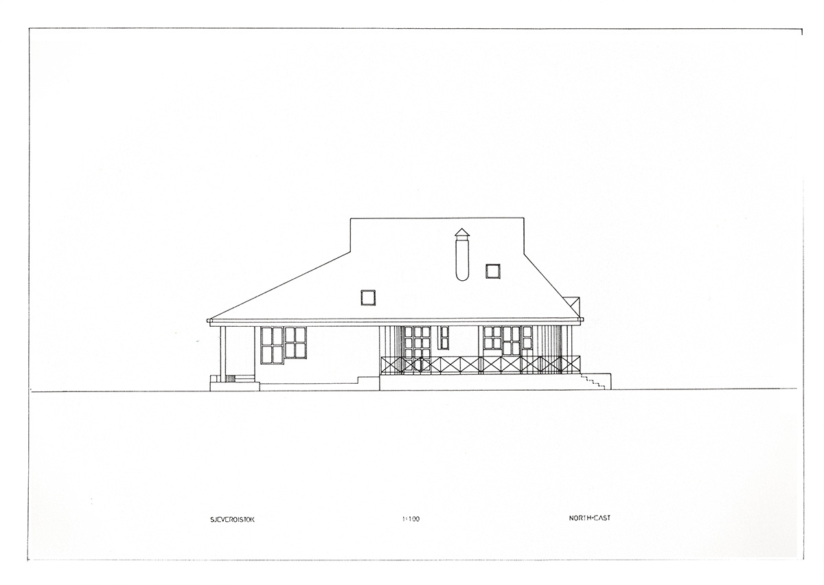
'Crna kuća II' - Gajski-Petercol, Samobor
projekt
1979.
izvedba:
1997.